• $289,500List Price
  • ActiveStatus
  • 30Number of Photos
  • 28.202819Latitude
  • 4167 Harbour Palm DriveAddress
  • Harbour Palm DriveStreet
  • HolidayTown
  • FLState
  • 34691Zip
  • PascoCounty
  • ResidentialProperty Type
  • TB8457286MLS Number
  • 3Bedrooms
  • 2Full Bath
  • 1Half Baths
  • 1,440Square Feet
  • 2023Year Built
  • 0.05Acreage

Listing Tools

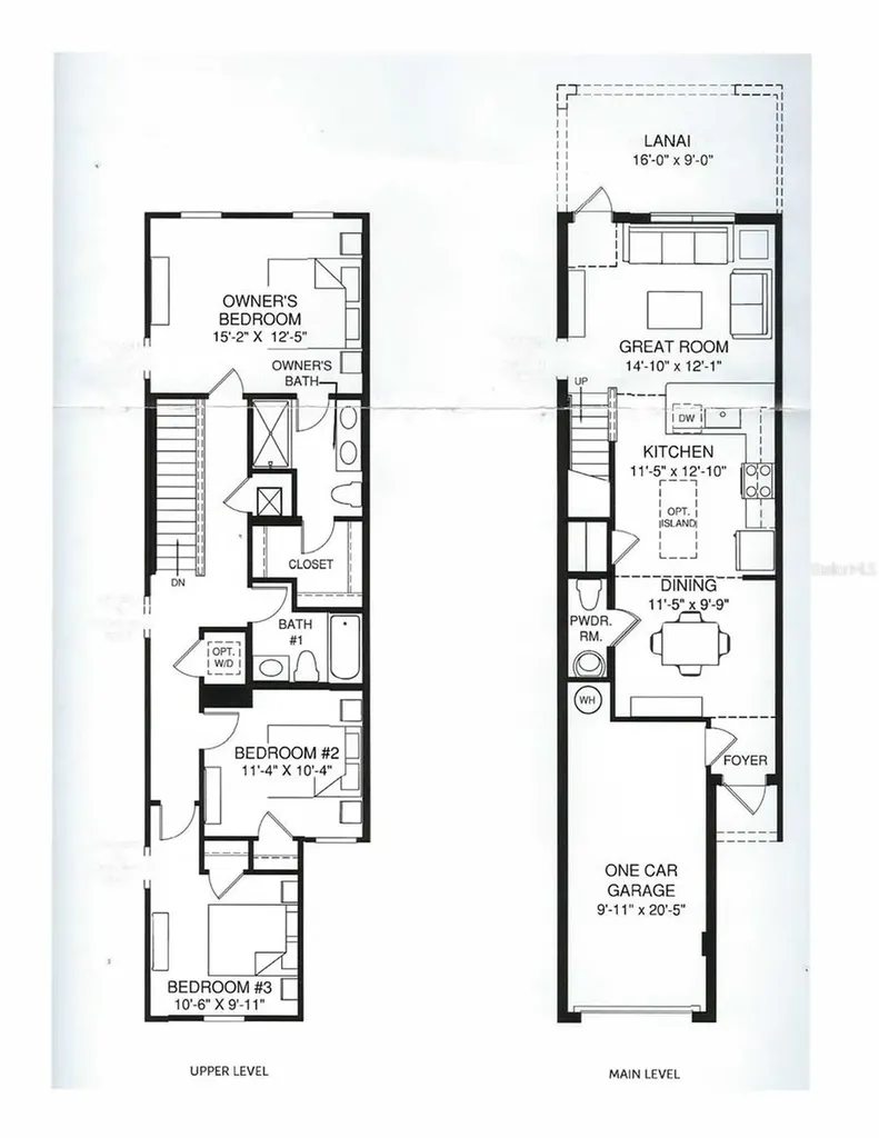
Built in 2023, this townhome offers modern construction without the typical new-build growing pains. The open main level features ceramic tile flooring, recessed lighting, a functional open-living layout that includes a breakfast bar flowing directly into the living room-ideal for everyday living and casual entertaining. The kitchen is equipped with quartz countertops (matched throughout the home), a deep farmhouse sink with a touchless faucet, black shaker cabinetry, stainless GE appliances, spacious closet pantry plus an island that anchors the space and provides extra cabinetry. Upstairs, all bedrooms are thoughtfully positioned, with the primary suite privately separated from the secondary bedrooms. The primary bedroom includes a walk-in closet and an en-suite bath with dual vanities and a glass-enclosed shower-an owner upgrade not included with standard new construction. The laundry closet with stackable washer/dryer combo is also located upstairs for everyday convenience. The screened lanai, another owner-added improvement, provides a comfortable outdoor living space with ceiling fan and peaceful greenery views. Unlike many association communities, grilling is permitted. Additional features include Ecobee smart thermostat with app-based temperature control, pre-installed TV mounts, aluminum storm shutters for doors and windows providing potential insurance savings. Parking is well-covered with a one-car garage, driveway parking, and nearby guest spaces along with the community mailbox located close to the home. The community has no CDD fees and no land lease, and the association handles ground maintenance with irrigation and exterior maintenance to include the roof. Quarterly association dues are $571.80, which amounts to $190.60 per month, covering cable, internet, common area upkeep and property manager. Located in Holiday, FL-Pasco County's closest northern community to Pinellas County-this area offers a lower cost of living while remaining approximately 30 minutes from the Gulf beaches and the Tarpon Springs Sponge Docks. Outdoor and lifestyle amenities nearby include Anclote River Park, Key Vista Nature Park, and the Jay B. Starkey Wilderness Preserve, offering miles of hiking and biking trails. For boaters and water lovers, the Anclote sandbar is a popular weekend destination, with local sandbar groups often gathering for fun in the sun. Easy access to US-19 provides convenient connections to both Pasco and Pinellas County destinations.

Location

Listings courtesy of StellarMLS as distributed by MLS GRID. Based on information submitted to the MLS GRID as of February 6, 2026 3:06 PM EST. All data is obtained from various sources and may not have been verified by broker or MLS GRID. Supplied Open House Information is subject to change without notice. All information should be independently reviewed and verified for accuracy. Properties may or may not be listed by the office/agent presenting the information. IDX information is provided exclusively for consumers’ personal noncommercial use and may not be used for any purpose other than to identify prospective properties consumers may be interested in purchasing. The data is deemed reliable but is not guaranteed by MLS GRID. The use of the MLS GRID Data may be subject to an end user license agreement.

Hi there! How can we help you?

Contact us using the form below or give us a call.

Send Us A Message:

By submitting this form I agree to receive marketing and customer service calls and text messages from Michael Saunders & Company. To opt out, you can reply 'stop' at any time or click the unsubscribe link in the emails. Consent is not a condition of purchase. Msg/data rates may apply. Msg frequency varies. Privacy Policy.

Do not fill in this field:

This site is protected by reCAPTCHA and the Google Privacy Policy and Terms of Service apply.

Hi there! How can we help you?

Contact us using the form below or give us a call.

Send Us A Message:

Do not fill in this field:

This site is protected by reCAPTCHA and the Google Privacy Policy and Terms of Service apply.

Hi there! How can we help you?

Contact us using the form below or give us a call.

Send Us A Message:

Do not fill in this field:

This site is protected by reCAPTCHA and the Google Privacy Policy and Terms of Service apply.

Do not fill in this field:

This site is protected by reCAPTCHA and the Google Privacy Policy and Terms of Service apply.

Do not fill in this field:

This site is protected by reCAPTCHA and the Google Privacy Policy and Terms of Service apply.

Do not fill in this field:

This site is protected by reCAPTCHA and the Google Privacy Policy and Terms of Service apply.

$

Do not fill in this field:

This site is protected by reCAPTCHA and the Google Privacy Policy and Terms of Service apply.